Пожаловаться на объявление
Продам: двухкомнатная квартира, 1 этаж (1), 39.4 общая пл-дь. - Ногинск
среда, 25 февраля 2026 г.Параметры объявления
Город:
Ногинск, Московская область
Адрес:
Московская обл, Богородский г.о., Ногинск г, Электростальское ш 11Б
Тип предложения:
Продам
Цена:
2 750 000 руб.
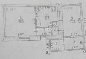
Количество комнат:2
Общая площадь, м²:39.4
Жилая площадь, м²:27.2
Площадь кухни, м²:8.1
Этаж:1
Этажей в здании:1
Текст объявления
Продается квартира (по факту часть дома с отдельным входом) в центре Ногинска!
Вашему вниманию предлагается уникальный вариант отдельное помещение в малоэтажном доме.
? Расположение:
Тихий центр, дом находится не у дороги. Развитая инфраструктура в шаговой доступности:
Рядом Медицинский колледж и Центральная больница.
Центральный городской парк с аттракционами для прогулок и отдыха.
Школа и детский сад в 10 минутах ходьбы.
Транспортная доступность: автобусная остановка в 50 метрах. До ж/д станции Ногинск (МЦД-4) и автовокзала 20 минут пешком или 2 остановки. Удобный выезд на Горьковское шоссе.
? Характеристики помещения:
Планировка: 2 комнаты, кухня-ванная, санузел.
Пристройка: Тамбур и неотапливаемая комната (можно использовать как кладовую или летнее помещение).
Коммуникации: ВСЕ централизованные: газ, электричество, водоснабжение, канализация.
Конструктив: Стены кирпичные, перегородки гипсолитовые, перекрытия железобетонные плиты.
Плюсы: Есть ПОГРЕБ!
Потенциально возможна реновация.
Звоните, документы готовы к оперативной сделке.
Вашему вниманию предлагается уникальный вариант отдельное помещение в малоэтажном доме.
? Расположение:
Тихий центр, дом находится не у дороги. Развитая инфраструктура в шаговой доступности:
Рядом Медицинский колледж и Центральная больница.
Центральный городской парк с аттракционами для прогулок и отдыха.
Школа и детский сад в 10 минутах ходьбы.
Транспортная доступность: автобусная остановка в 50 метрах. До ж/д станции Ногинск (МЦД-4) и автовокзала 20 минут пешком или 2 остановки. Удобный выезд на Горьковское шоссе.
? Характеристики помещения:
Планировка: 2 комнаты, кухня-ванная, санузел.
Пристройка: Тамбур и неотапливаемая комната (можно использовать как кладовую или летнее помещение).
Коммуникации: ВСЕ централизованные: газ, электричество, водоснабжение, канализация.
Конструктив: Стены кирпичные, перегородки гипсолитовые, перекрытия железобетонные плиты.
Плюсы: Есть ПОГРЕБ!
Потенциально возможна реновация.
Звоните, документы готовы к оперативной сделке.












